Negozio in vendita

Aulla, Via Cerri
€ 2.500.000
10 locali 10 locali
1770 Mq 1770 Mq
2 bagni 2 bagni

Negozio in vendita

Aulla, Via Cerri

Descrizione annuncio

COSA SAPERE

AULLA: CAPANNONE COMMERCIALE CON APPARTAMENTI.

DESCRIZIONE E PARTICOLARITA'

L'immobile si sviluppa su 3 piani:

-piano interrato: categoria D/8, 570 mq con altezza di 3 metri, bagno e accesso alla corte esterna con porte apribili e carrabili.

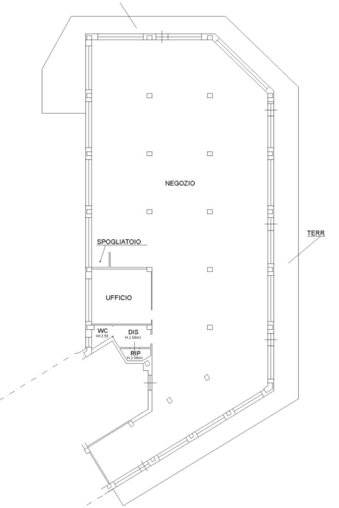
-piano terra: categoria c/1 di 570 mq con bagno, zona uffici e 10 vetrine.

-piano primo: sono presenti appartamenti di varie metrature nello specifico sei bilocali con zona angolo cottura, camera e bagno. E' presente un appartamento di 145 mq composto da sala cucina, due camere con cabina armadio privata, bagno e zona lavanderia.

La proprietà è completa di un'area estrerna di circa 2300 mq che circonda l'edificio ed è funzionale anche come area di manovre per grandi mezzi.

Attualmente una parte di area esterna è adibita come giardino per le abitazioni situate al primo piano.

L'immobile è stato completamente ristrutturato recentemente in tutti i piani.

I piani sono comodamente collegati internamente da un'ascensore.

Attualmente l'immobile è utilizzato come negozio di biciclette e attività di b&bike.

E' presente un progetto già depositato in comune per la realizzazione di una casa di riposo convenzionata con asl.

UBICAZIONE E CONTESTO

L'edificio si trova a pochi metri dalla stazione di Aulla e dal casello autostradale.

Posizione strategica sia per attività commerciali che industriali.

Aulla è comune italiano di circa 10.000 abitanti ed è il maggior centro della zona conosciuta come Lunigiana con numerosi supermercati e grandi magazzini che attirano un elevato numero di acquirenti locali e di turisti.

Mostra tutto

Nelle vicinanze

Trasporto pubblico Trasporto pubblico
Aulla Lunigiana
Aulla Lunigiana
260 m
Trasporto pubblico
170 m
Direzione Pontremoli Ragnaia
Direzione Pontremoli Ragnaia
400 m
Ricariche auto elettriche Ricariche auto elettriche
Aulla Parcheggio Via Resistenza | EnelX
860 m
Ex Stazione DI AULLA | ENELX
1,2 Km
Municipio di AULLA | ENELX
1,3 Km
Scuole Scuole
Scuola elementare Ragnaia
230 m
Istituto Comprensivo "D. Alighieri"
980 m
Scuole
1,0 Km
Liceo classico statale Giacomo Leopardi
1,5 Km
Farmacia Farmacia
Farmacia Dott. Giannotti
890 m
farmacia Scapparone
1,7 Km
Supermercati Supermercati
Penny Market
700 m
Lidl Italia
720 m
Conad Superstore
920 m
Conad
1,1 Km
Salumificio Marsili
2,5 Km
Negozi Negozi
Tre-Ci
780 m
Abbigliamento Bambini
830 m
Panificio Sorelle Renzi
1,3 Km
Panificio il Chicco
1,5 Km
Negozi
2,9 Km
Bar Bar
Maga Cafè
140 m
Bar
370 m
Instabar
840 m
Icaro's Pizzeria Lounge Bar
1,2 Km
Tiffany Caffè
1,3 Km
Ristoranti Ristoranti
Dai Fichi Secchi
880 m
Pizza Away
880 m
Locanda Magno
1,4 Km
Il Golfo di Napoli
1,8 Km
Ristorante Vecchia Bruxelles
2,2 Km
Mostra tutto

Caratteristiche

Rif.:
61141881
Piano:
Su più livelli di 3 con ascensore
Totale piani:
3
Posti auto:
10
Balconi:
2
Condizionamento:
Autonomo
Mostra tutto
Prezzo Prezzo
€ 2.500.000
Rata mutuo Rata mutuo
€ 11.785 / mese
Spese annue Spese annue
€ 0
Proponi il tuo prezzoProponi il tuo prezzo

Classe Energetica

G
G
G
G
G
G
G
G
G
Anno di costruzione:
1990
Riscaldamento:
Assente

Ti interessa visionare l'immobile?

Fissa un appuntamento  Fissa un appuntamento

Richiedi informazioni

Clicca su Leggi per aprire l'informativa
* Questi campi sono obbligatori

Calcola il tuo mutuo

Semplice e senza impegno
Anticipo

( % )
Mutuo

( % )

pochi semplici passi

inserisci i tuoi dati
Questionario completato
Grazie per aver richiesto un appuntamento senza impegno con un nostro Consulente del Credito e Assicurativo.

Hai inserito correttamente tutti i dati necessari e a breve riceverai una e-mail con un link da convalidare per inviare i tuoi dati.
Affiliato
Studio Industriale La Spezia Srl
P.zza Dante Alighieri, 22 19122 La Spezia (SP)

Il nostro staff


  • Giada Pierami
    Affiliata

  • Daniele Toscano
    Affiliato
P.zza Dante Alighieri, 22 19122 La Spezia (SP)
Zona: La Spezia
Mostra su mappa
Affiliato
Studio Industriale La Spezia Srl
P.zza Dante Alighieri, 22 19122 La Spezia (SP)

2026 Tecnocasa Franchising S.p.A. - P. IVA 08365160152 - Via Monte Bianco 60/A 20089 Rozzano (MI). Ogni agenzia ha un proprio titolare ed è autonoma. Privacy policy | Policy utilizzo | Cookie policy