Capannone in vendita

Bolano, Via Galileo Galilei - Ceparana-Carpena
€ 340.000
2 locali 2 locali
360 Mq 360 Mq
2 bagni 2 bagni

Capannone in vendita

Bolano, Via Galileo Galilei - Ceparana-Carpena

Descrizione annuncio

COSA SAPERE SULL'IMMOBILE:

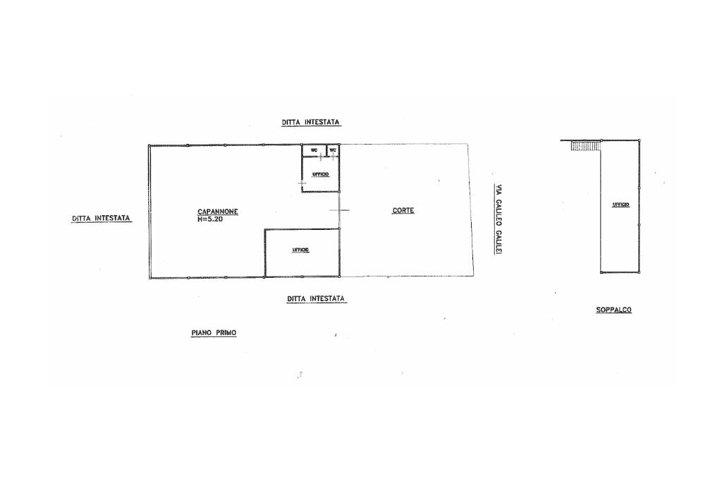
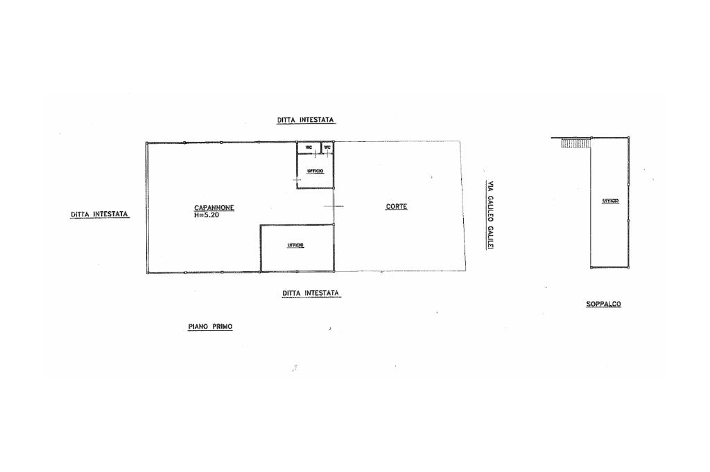
Proponiamo capannone in vendita a Ceparana.

DESCRIZIONE E PARTICOLARITA':

- Categoria D7

- 300mq

- Altezza 5,2 metri

- Ufficio e due servizi igienici

- Soppalco di 60 mq circa

- Area esterna/Parcheggio fino a 10 posti auto

- Tetto riqualificato recentemente

UBICAZIONE E CONTESTO:

L'immobile è situato nella zona industriale del paese a pochi passi dal centro e tutti i servizi necessari e vicino alle grandi vie di collegamento con le varie zone limitrofe.

A 500 mq dall'ingresso autostradale.

Ceparana è una frazione di 5 547 abitanti del comune di Bolano, in provincia della Spezia. È attraversata dalla strada statale 330 di Buonviaggio.

Mostra tutto

Nelle vicinanze

Trasporto pubblico Trasporto pubblico
Trasporto pubblico
530 m
Direzione Sarzana Santo Stefano
Direzione Sarzana Santo Stefano
3,0 Km
Scuole Scuole
Scuole
1,5 Km
Negozi Negozi
Valerio's Bakery
3,0 Km
Ristoranti Ristoranti
Trattoria pizzeria Il contado
2,6 Km
Big Baffalo Trattoria
2,8 Km
Il Borgo
3,0 Km
Mostra tutto

Caratteristiche

Rif.:
61103810
Piano:
Terra
Posti auto:
10
Condizionamento:
Autonomo
Ascensore:
No
Riscaldamento:
Assente
Mostra tutto
Prezzo Prezzo
€ 340.000
Rata mutuo Rata mutuo
€ 1.603 / mese
Proponi il tuo prezzoProponi il tuo prezzo

Classe Energetica

G
G
G
G
G
G
G
G
G
Anno di costruzione:
1980
Riscaldamento:
Assente

Ti interessa visionare l'immobile?

Fissa un appuntamento  Fissa un appuntamento

Richiedi informazioni

Clicca su Leggi per aprire l'informativa
* Questi campi sono obbligatori

Calcola il tuo mutuo

Semplice e senza impegno
Anticipo

( % )
Mutuo

( % )

pochi semplici passi

inserisci i tuoi dati
Questionario completato
Grazie per aver richiesto un appuntamento senza impegno con un nostro Consulente del Credito e Assicurativo.

Hai inserito correttamente tutti i dati necessari e a breve riceverai una e-mail con un link da convalidare per inviare i tuoi dati.
Affiliato
Studio Industriale La Spezia Srl
P.zza Dante Alighieri, 22 19122 La Spezia (SP)

Il nostro staff


  • Giada Pierami
    Affiliata

  • Daniele Toscano
    Affiliato
P.zza Dante Alighieri, 22 19122 La Spezia (SP)
Zona: La Spezia
Mostra su mappa
Affiliato
Studio Industriale La Spezia Srl
P.zza Dante Alighieri, 22 19122 La Spezia (SP)

2026 Tecnocasa Franchising S.p.A. - P. IVA 08365160152 - Via Monte Bianco 60/A 20089 Rozzano (MI). Ogni agenzia ha un proprio titolare ed è autonoma. Privacy policy | Policy utilizzo | Cookie policy