Negozio in affitto

La Spezia, Via Della Ghiara - Chiappa
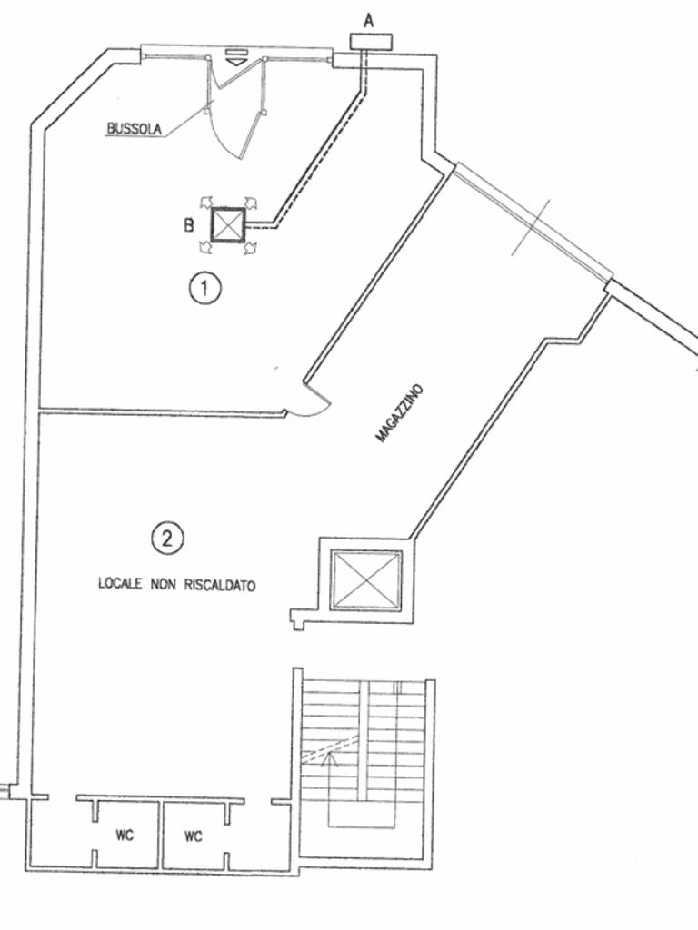
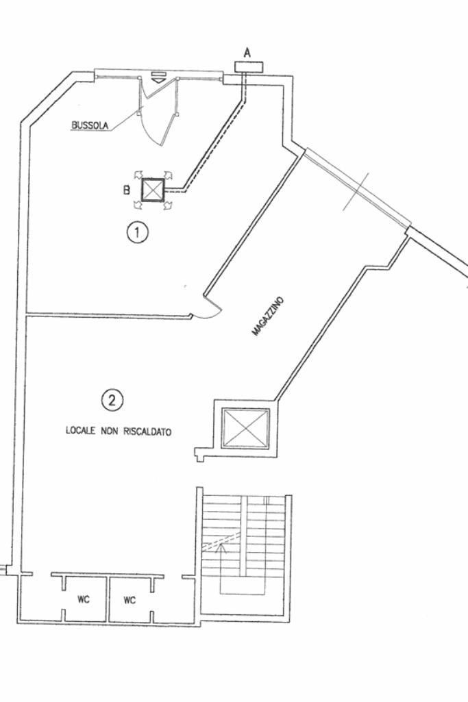
2 locali 2 locali
126 Mq 126 Mq
2 bagni 2 bagni

Negozio in affitto

La Spezia, Via Della Ghiara - Chiappa

Descrizione annuncio

COSA SAPERE SULL'IMMOBILE:

Proponiamo negozio in affitto alla Chiappa.

DESCRIZIONE E PARTICOLARITA':

L'immobile sviluppato su 126 mq è suddiviso in zona ufficio open space e ampio magazzino con un'altezza di 4 metri.

Vi sono due servizi igienici e un lavabo disponibili.

Ambiente climatizzato.

Disposto di allarme e videosorveglianza.

Presenta due ingressi e un posto auto condominiale privato.

Possibilità di avere l'arredamento e l'attrezzatura completa.

UBICAZIONE E CONTESTO:

Situato nella zona nord della città, l'immobile si trova vicino alla stazione centrale e a tutti i servizi e mezzi necessari.

La Spezia è un comune italiano di 92651abitanti, capoluogo dell'omonima provincia in Liguria.

Mostra tutto

Nelle vicinanze

Trasporto pubblico Trasporto pubblico
stazione di La Spezia Centrale
stazione di La Spezia Centrale
1,1 Km
Maggiano
Maggiano
230 m
Monfalcone
Monfalcone
310 m
Terminal Traghetti di La Spezia
2,4 Km
Terminal Crociere di La Spezia
2,5 Km
Ricariche auto elettriche Ricariche auto elettriche
ENERCOOP CC Le Terrazze by Duferco
2,2 Km
Europa Park
2,3 Km
Le Terrazze
2,4 Km
Scuole Scuole
Istituto Paritario Madri Pie Franzoniane
560 m
Scuole
650 m
Complesso Scolastico 2 Giugno
910 m
Liceo Scientifico Antonio Pacinotti
1,2 Km
Polo Universitario della Spezia
1,5 Km
Farmacia Farmacia
Farmacia
190 m
Farmacia dell'Arsenale
460 m
Farmacia Internazionale
730 m
Farmacia della Stazione
1,4 Km
Farmacia Campodonico
1,4 Km
Ospedali Ospedali
Pronto Soccorso di La Spezia
2,4 Km
Ospedale Civile Sant'Andrea
2,4 Km
Ospedali
2,6 Km
Supermercati Supermercati
Sigma
120 m
Penny
210 m
Supermercati
630 m
in Coop
700 m
Di Meglio Supermercato
1,1 Km
Negozi Negozi
Negozi
190 m
Il Giardino di Daniele
540 m
Panificio Santucci
700 m
Rizoli
790 m
DORO Supercati
1,4 Km
Bar Bar
Happy Bar
530 m
Bar
630 m
Pasticceria Bezzi
770 m
Tabacchi
1,4 Km
Biolino
1,7 Km
Ristoranti Ristoranti
Caran
400 m
Pizzeria Fuoricampo
490 m
Negrao
710 m
Pizzeria Capolinea
710 m
Fuorionda
750 m
Mostra tutto

Caratteristiche

Rif.:
61163402
Piano:
Terra di 3
Totale piani:
3
Posti auto:
1
Condizionamento:
Autonomo
Ascensore:
No
Mostra tutto
Prezzo Prezzo
€ 1.200 / mese
Spese annue Spese annue
€ 700
Anche in vendita a

Classe Energetica

G
G
G
G
G
G
G
G
G
EP globale non rinnovabile:
175.00 kW h/m² anno
EP globale rinnovabile:
175.00 kW h/m² anno
EP invernale del fabbricato:
EP estiva del fabbricato:
Anno di costruzione:
1990
Riscaldamento:
Assente

Ti interessa visionare l'immobile?

Fissa un appuntamento  Fissa un appuntamento

Richiedi informazioni

Clicca su Leggi per aprire l'informativa
* Questi campi sono obbligatori
Affiliato
Studio Industriale La Spezia Srl
P.zza Dante Alighieri, 22 19122 La Spezia (SP)

Il nostro staff


  • Giada Pierami
    Affiliata

  • Daniele Toscano
    Affiliato
P.zza Dante Alighieri, 22 19122 La Spezia (SP)
Zona: La Spezia
Mostra su mappa
Affiliato
Studio Industriale La Spezia Srl
P.zza Dante Alighieri, 22 19122 La Spezia (SP)

2026 Tecnocasa Franchising S.p.A. - P. IVA 08365160152 - Via Monte Bianco 60/A 20089 Rozzano (MI). Ogni agenzia ha un proprio titolare ed è autonoma. Privacy policy | Policy utilizzo | Cookie policy